Modern Treehouse in Historic Spanish Turret House | Appartement dans Portland

2 Chambre Appartement dans Irvington, Portland
This is not your typical short term rental with IKEA furniture and misleading photos! The Turret House is located on a large corner lot in Portland's most beautiful Eastside neighborhood (Irvington) and surrounded by gorgeous properties and tree-canopied streets. The unit was meticulously updated, while maintaining its Spanish Californian architecture and wide open circular floor plan. My partner and I are both designers and we’ve worked hard to blend tradition and modern simplicity.
Walk up the wide staircase to a magical old brick, southwest-facing patio perch that sits under a 100 year-old cedar tree and is surrounded by deciduous trees, art installations, and a meticulously cultivated garden with a 100 foot-long dry stack wall. An original 3-inch thick tongue & groove, fir and wrought iron door gives entry to the winding turret staircase that leads to your second floor private unit. A solid brass Moroccan Ceiling light projects geometric patterns on the circular turret walls at night while the custom etched, leaded glass windows reflect a full spectrum of colors in the sunshine.
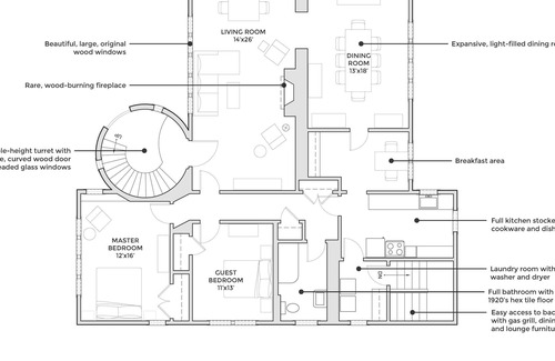
From the turret, you walk into your second floor, 2,000 square-foot flat. The unit is truly HUGE and is surrounded by more than 30 original, single-paned window bays that deliver much light and old-growth tree views. The unit also features over 50 pieces of original art. Original oak floors throughout, original white hex tile in the bathroom, lath & plaster walls, tall ceilings, built-in cubbies, a large fireplace, and arched doorways make the unit feel like you’re in Spain a century ago. Each room is extremely spacious and well-appointed with a combination of American Heritage and Mid-Century Modern furniture. The furniture, beautiful indoor plants, and architecture create a unique experience that blends current and timeless design.
The neighborhood is an architectural dream and designated as a Historic District. It features loads of streets canopied by old-growth deciduous trees. It is an ideal place from which to centrally access the city while residing in a lush oasis of European and Craftsmen architecture
ROOM DESCRIPTIONS
- Large brick patio with double hammock, gas BBQ, dining table for 4, night lighting for evening hosting, great views, and loads of art that, together, make for a magical place to read, entertain, and relax.
- 1 giant master bedroom with new King, 100% organic latex mattress, large flat screen TV with Apple TV, double closet, beautiful Mid-Century rocking chair, rare Kurdish rug, and a stunning walnut credenza.
- 1 spacious guest bedroom with new queen bed, desk, & solid wood furniture
- 1 giant bathroom with full bathtub, built-in mirror/medicine closet, and original hex tile floor
- Huge living room with a large, stocked fireplace, very tall ceilings, brand new extra-long chez lounge sofa and chairs, work table, and a huge library of incredible books.
- Huge dining room with beautiful leather and oak dining chairs - seating for 8.
- Breakfast nook with wood table and chairs.
- Fully stocked kitchen with everything you need and real knives.
- Private laundry room with washer and dryer.
- Ample, safe parking immediately in front of property or in driveway
The front yard patios and furniture are available to guests. The backyard is used exclusively by the owners only.
OTHER UNIT FEATURES:
- Air Conditioning in living room and bedrooms during summer.
- Beautiful art in every room
- Loads of daylight and tree views from each room
- High ceilings with Spanish style arches and lath & plaster walls throughout
The unit is a 18 min taxi from the airport. Its also 2 miles from downtown Portland and less than a mile from the Convention Center and Moda Center. Nike’s shared bike system is 5 short blocks away. MAX is 1 mile away. Busses are 3 blocks away. Most guests use Lyft or rent a car.
Pet fee for approved pets only.
The space is a 18 min taxi from the airport. Its also 2 miles from downtown Portland and less than a mile from the Convention Center and Moda Center. Nike’s shared bike system is 5 short blocks away. MAX is 1 mile away. Busses are 3 blocks away. Most guests use Lyft or rent a car.
Irvington is one of the country's largest historic neighborhoods and is centrally located for Eastside Culture while offering quick access to downtown via Broadway Ave. Irving Park is a 10 min walk from the house.
Modern Treehouse in Historic Spanish Turret House is located in Irvington. Modern Treehouse in Historic Spanish Turret House provides accommodation, featuring Animaux acceptés, Piscine, Literie/Linge de maison, among other amenities. This Appartement features Animaux acceptés, Piscine, Literie/Linge de maison, to make your stay a comfortable one.
Modern Treehouse in Historic Spanish Turret House has 2 Chambres , 1 Salle de bains, and max occupancy of 5 people. The minimum rental for this property is 1 nights, but this can change depending on the season you plan on staying. Previous guests have given good rated it, and VRBO labeled it a top-rated Appartement because of the excellent services rendered by the owner or manager of this Appartement, and has consistently provided great experiences for their guests. Most families or guests that use it recommend it to their friends and some of them are repeat guests. Appartement has a friendly neighborhood, and the Irvington has interesting places to visit. If you want to learn more about the Appartement in Irvington, such as places to visit and things to do nearby, you can check below to learn more.
Commodités
Aperçu des installations
-
Air conditioning
-
Bathtub or shower
-
Hair dryer
-
Shampoo
-
Soap
-
Toilet paper
-
Towels provided
-
Dining table
-
Bed sheets provided
-
Dining room
-
Fireplace
-
Library
-
Living room
-
Blender
-
Coffee grinder
-
Electric kettle
-
Paper towels
-
Washing machine and dryer
-
Electric car charging station on site
-
2 per room
-
Pet friendly
-
Welcoming dogs only
-
Smoke-free property
-
Books
-
Flat-screen TV
-
Desk
-
Desk chair
-
Children's books
-
Playground
-
Free WiFi, with speed of 250+ Mbps (good for 3–5 people or up to 10 devices)
-
Barbecue grill
-
Furnished patio
-
Garden
-
Yard
-
Carbon monoxide detector
-
Deadbolt lock
-
Fire extinguisher
-
First aid kit
-
Smoke detector
-
Private pool
-
Sauna
Stratégies
Commentaires
FAQ
Irvington appartement est-il adapté aux animaux domestiques pour les clients?
Non, les animaux de compagnie ne sont pas autorisés dans cet établissement. Consultez les commentaires des clients pour plus d'informations sur les expériences des clients.
Le Irvington appartement dispose-t-il d'une piscine?
Non, Irvington appartement ne dispose pas d'une piscine. Voir les détails sur la disponibilité de la piscine intérieure ou privée et d'autres installations.
Combien coûte la nuitée à Irvington appartement ?
Les meilleurs tarifs pour Irvington appartement commencent à partir de $234 par nuit et comprennen Climatiseur, Piscine privée, Jacuzzi, Blanchisserie, Animaux acceptés, Piscine, Literie/Linge de maison, Adapté aux enfants, Cuisine avec toutes les autres installations. MLFR correspond à chaque voyageur avec son hébergement parfait, que vous voyagiez avec un groupe, des amis, une famille ou des animaux de compagnie.
Irvington appartement est-il adapté aux familles?
Selon les informations que nous avons reçues du propriétaire ou de notre partenaire, cet établissement n'est pas considéré comme adapté aux familles. Selon les informations rapportées par le propriétaire ou le gérant, appartement n'a pas précisé que les enfants sont les bienvenus. Veuillez consulter les détails sur l'adéquation pour votre famille ou vous renseigner auprès de l'établissement pour en savoir plus.
Le Irvington appartement est-il accessible en fauteuil roulant ou propose-t-il des services pour les personnes handicapées?
Selon les informations reçues de notre partenaire, Irvington appartement n'a pas spécifié s'ils sont accessibles aux personnes en fauteuil roulant. De même, il n'est pas spécifique qu'un ascenseur soit disponible dans l'établissement. Les détails spécifiques d'accessibilité peuvent être supprimés dans la section des détails de l'établissement de cette page.
Quelle est la politique de séjour minimum pour le Irvington appartement?
D'après les informations rapportées par le propriétaire ou gestionnaire, Irvington appartement indique 1 day politique de séjour dans cet appartement. Les invités sont prévenus que la politique de séjour minimum peut différer en fonction de la saisonnalité ou de disponibilité et peut être à la discrétion du propriétaire ou du gestionnaire.
Quelle est la politique d'annulation en place pour Irvington appartement?
Selon les informations rapportées par le propriétaire ou le gestionnaire, les détails de la politique d'annulation pour Irvington appartement sont les suivants : Politique d'annulation Les clients sont avertis que la politique d'annulation peut différer en fonction de la saison, de la disponibilité ou des restrictions de voyage actuelles. Les clients doivent également être conscients que cette politique peut être sujette à des modifications et doivent être efficaces avant la réservation. Plus de détails peuvent être disponibles sur cette page dans la description de la propriété. Cependant, une arrivée anticipée ou un départ tardif peut parfois être négociée entre l'invitation et le propriétaire ou le gestionnaire de cet établissement.